
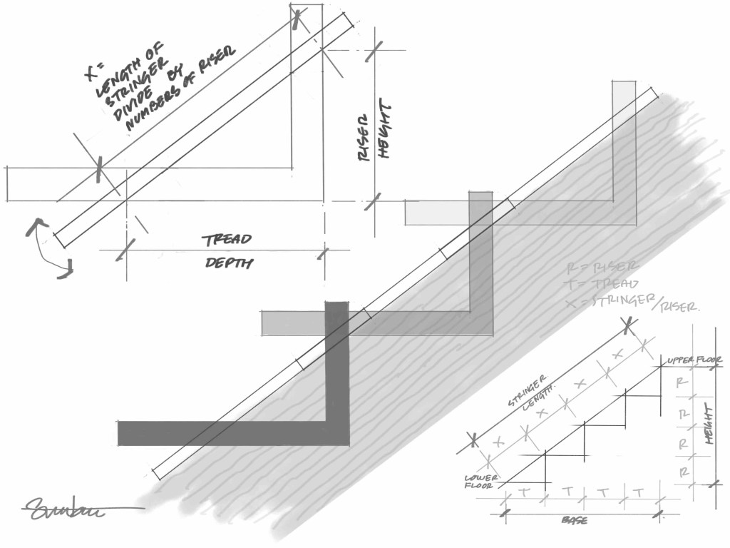
วิธีการขึ้นรูปแบ่งขั้นบันไดที่แม่นยำมากขึ้นโดยการใช้ฉากเหล็กหนีบประกบด้วยชิ้นไม้เพื่อใช้เป็นแกนระนาบอ้างอิง โดยขอบด้านหนึ่งของชิ้นไม้ชี้ไปที่ขาฉากด้านยาวตามระยะของลูกนอน ขอบอีกด้านหนึ่งชี้ไปที่ขาฉากด้านสั้นตามระยะของลูกตั้ง เมื่อ lock หนีบไม้ประกบนี้แล้วจะได้ Jig ความลาดเอียงของบันไดตามสัดส่วนของลูกตั้งและลูกนอนเพื่อใช้ในการขึ้นรูปได้อย่างแม่นยำ



